
SLUTSÅLDA!
Projekt Vinslöv:
Bomero Fastigheter AB har vunnit Hässleholm kommuns markanvisningstävling gällande Vanneberga 2:80 i Vinslöv. Området är beläget i skogen mellan Rönngatan och Pilgatan. Detaljplanen är sedan länge färdig för området.
Antal marklägenheter: 10 st
Storlek: ca 106 m²
Byggstart: Hösten 2019
Inflyttning: November 2020
Upplåtelseform: Bostadsrätt
OBS! SLUTSÅLDA

Bläddra i broschyren genom
att klicka på PDF-ikonen.
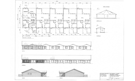
Brf Planeternas Vä
Försäljningen är igång! Kontakta vår mäklare Lena Fridlund Danielsson
Telefon: 0709 88 20 01
e-post: lena.danielsson@maklarhuset.se
För mer information och bilder se mäklarens hemsida:
Bekvämt boende i ett plan på lugnt och trivsamt läge i Vä. Brf Planeternas Vä Vä - Mäklarhuset
Antal marklägenheter: 29 st.
Storlek: Ca. 106 m²
Insats: Från 2 375 000 sek
Månadsavgift: 5 914 sek
Byggstart: Mars 2025
Inflyttning: 2026-07-15
Upplåtelseform: Bostadsrätt
Hässleholm:
Bomero Fastigheter AB har genom markanvisningstävling från Hässleholms kommun gällande området Björklunda i Hässleholm tilldelats en del av markområdet. Bomero har område nummer 8.
Antal marklägenheter i två plan: ca 18 st.
Preliminär storlek: ca 120 m²
Beräknad möjlig byggstart: Ovisst
Beräknad möjlig inflyttning: Ovisst
Upplåtelseform: Bostadsrätt
Mer information kring situationsplan, planlösningar, insatser och månadsavgifter kan ej ges i nuläget. Vi inväntar att Hässleholms kommun skall exploatera området.
Vinslöv Bertes Ängar:
Bomero Fastigheter AB har förvärvat cirka 53 000 m² mark vid Bertes Ängar i Vinslöv.
Fastighetsbeteckning: Hässleholm Vanneberga 9:71
Området kommer planeras för både tomter och marklägenheter.
Intresselista finns för både tomter och marklägenheter, kontakta oss om du vill sätta upp ditt namn.
Start detaljplan: Vår 2022
Planerad avslut detaljplan: 2026
Planerad exploateringsstart: 2027
Planerad försäljningsstart: 2028
Eftersom detaljplan är under uppförande kan den beräknade tidsplanen ändras.
Vinslöv Vinona:
Bomero Fastigheter AB har tecknat avtal med Hässleholms kommun om förvärv av mark i Vinslöv mellan campingen och Sörbyvägen.
Bomero planerar att uppföra marklägenheter.
Preliminärt antal marklägenheter: ca 15 st i två etapper. Totalt ca 30 st.
Preliminär storlek: ca 106 m²
Beräknad möjlig byggstart: Ovisst.
Beräknad möjlig inflyttning: Ovisst.
Upplåtelseform: Bostadsrätt
Eftersom detaljplan är under uppförande kan den beräknade tidsplanen ändras.
Området kommer exploateras i ett senare skede. Tidplan finns ej. Vi hänvisar till Bertesområdet tillsvidare.
Vill du veta mer om:
BOMERO
Skicka ett meddelade till oss så kontaktar vi dig och berättar mer om vårt projekt.
© 2019 av Bomero Fastigheter AB.




















































